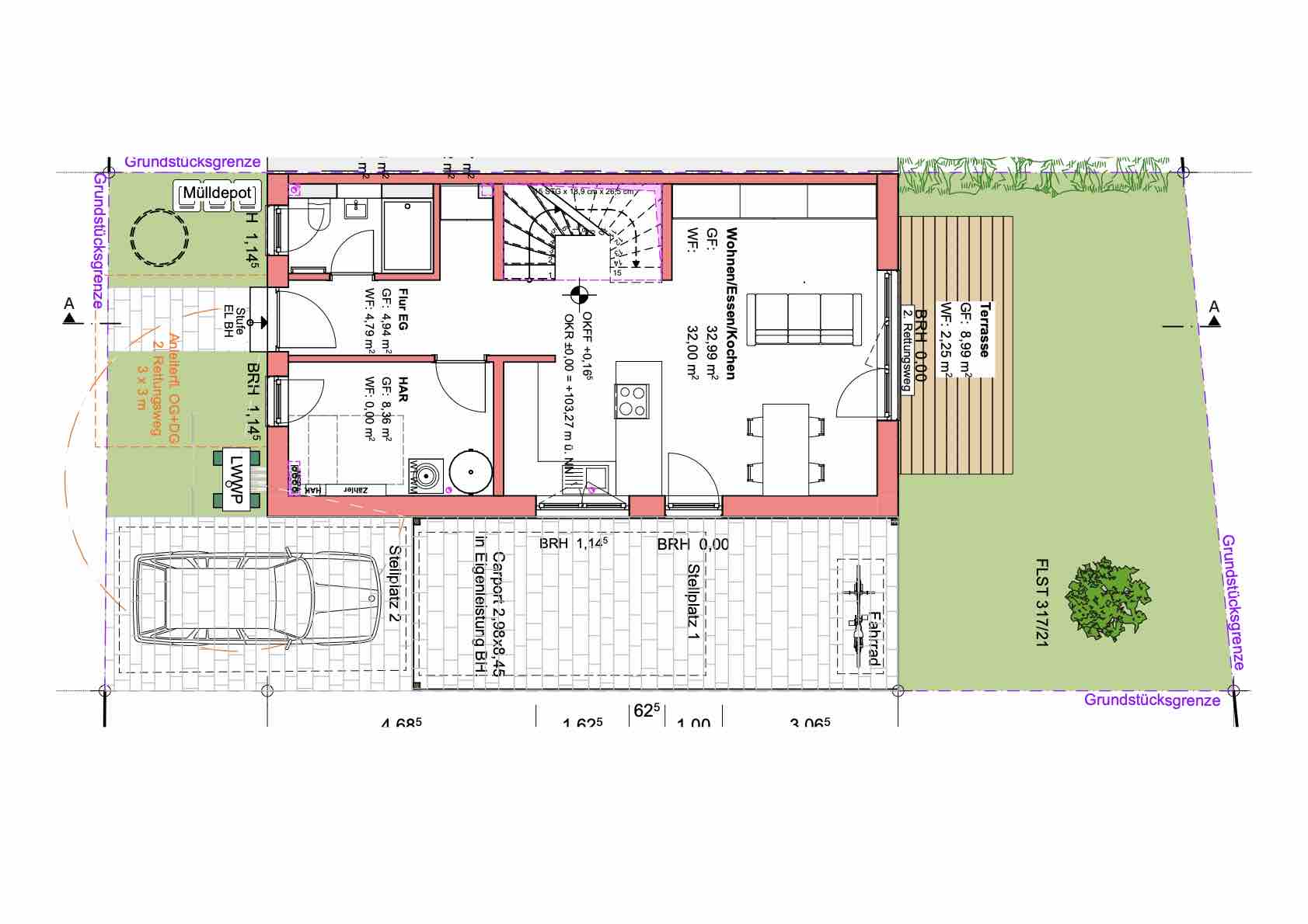
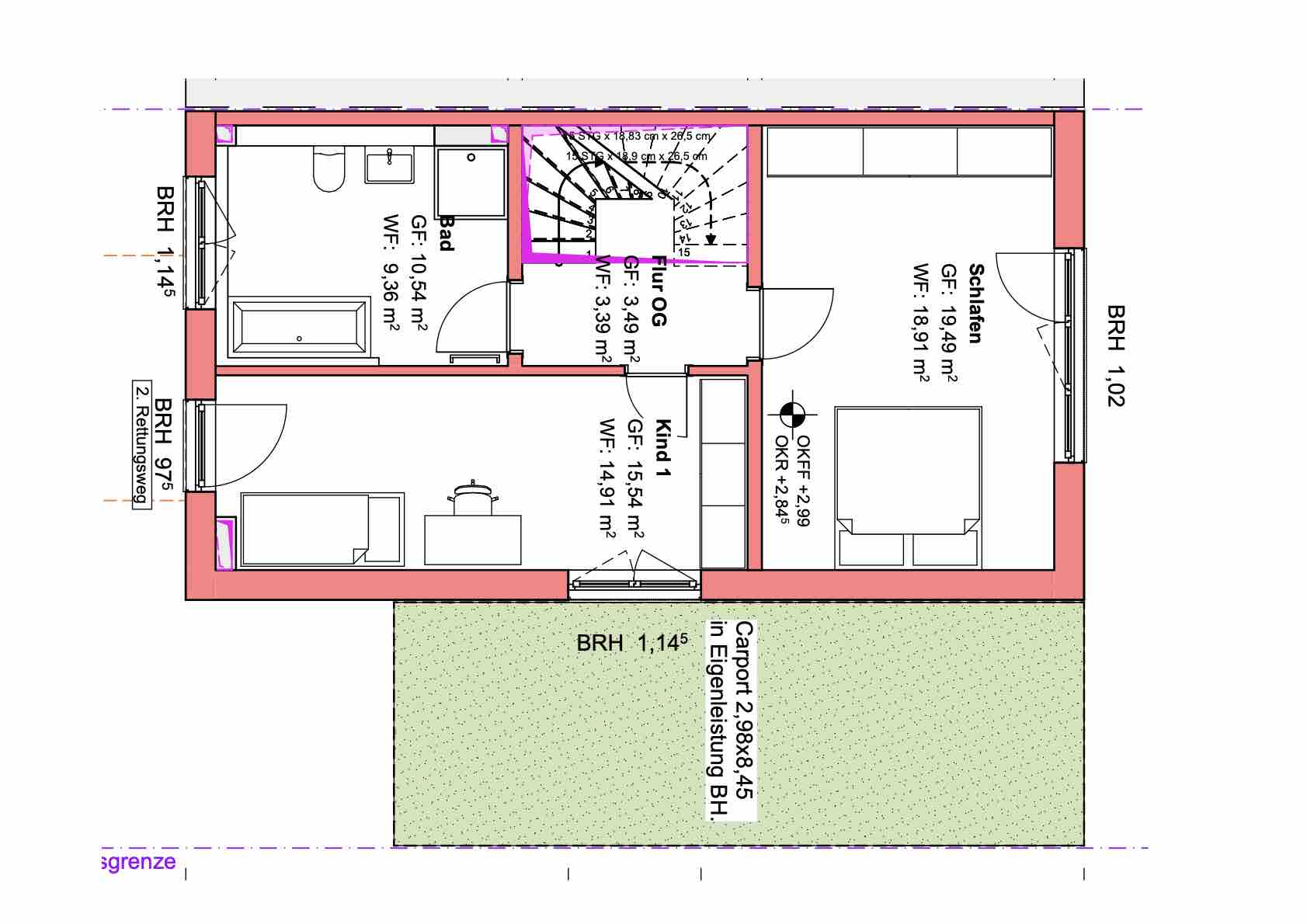
Geplant ist ein Doppelhaus auf Bodenplatte. Provisionsfrei direkt vom Bauträger.







Geplant ist ein Doppelhaus auf Bodenplatte. Provisionsfrei direkt vom Bauträger. INKLUSIVE IM ANGEBOTSPREIS: - Grundstück inkl. Erschließung - Baukosten schlüsselfertig (Bäder fertig) mit Festpreis zuzüglich folgender Kosten: - Versorgungsanschlüsse ca. 10.000 € - PV Anlage - Zuwege / Terrasse / Stellplatz - Bodenbeläge und Malerarbeiten zzgl. Grunderwerbskosten. Die fehlenden Ausbaugewerke Maler- und Bodenbeläge sowie Pflasterarbeiten können in Eigenleistung erbracht werden oder optional gegen Aufpreis mit ausgeführt werden. Gerne beraten wir Sie und erstellen Ihnen Ihre ganz persönliche Kostenaufstellung. Baubeginn Dezember 2025, Fertigstellung Ende 2026!
Hausausführung schlüsselfertig inkl. - Architektenleistung - Erdarbeiten - Bodenplatte mit Dämmung - Rohbau Stein auf Stein - Dachstuhl und Dacheindeckung - Trockenbau - Innen- und Außenputz - Exklusive Aluminium Haustür - Kunststofffenster mit 3-fach Verglasung - Rollläden - Holz Innentreppe - Bad und WC komplett fertig mit Fliesen - Wärmepumpe - Fußbodenheizung - Elektroinstallation
Eggenstein (Ortskern) Einkaufsmöglichkeiten in der Nähe.

